産品(pin)概述
電動三通調(diao)節閥,一般情況是(shi)由381系列直行程電(diàn)動執行機構和三(sān)通調節閥體組成(chéng)。電動執行機構為(wéi)電子式一👄體化🧑🏾🤝🧑🏼結(jié)構,内有伺服放大(dà)器,輸入控制信号(hao)(4-20mADC或1-5VDC)及電源即可控(kong)制閥門開度,達到(dào)對壓力、流量、液位(wèi)、溫度等參數的調(diao)節。電動㊙️三通調節(jie)閥具有動🐕作靈敏(mǐn)、連線🚩簡單、流量大(dà)、體積小、調節精度(dù)高等特點。控制精(jing)度和性能比DKZ型有(you)明顯提高。電動三(sān)👣通調節閥具有調(diao)節精度高,動作穩(wen)定可靠等優點。電(dian)動三♈通合流調節(jie)閥主要用于将兩(liǎng)種流體🚩混合成第(di)三種流體;電動三(san)通分流調節閥主(zhǔ)要用于将一股流(liu)體分成兩股流體(ti)。電動三通調節閥(fá)産品可代替兩台(tai)互為開關的單、雙(shuang)座調節閥,用于液(ye)體、氣體、蒸❌汽等介(jiè)質的調節與控制(zhì)。
主要技術參數
● 閥(fá)體
三通(tōng)分流/合流閥 | |
合流閥:DN20~300mm、分流(liu)閥:DN80~300mm | |
公稱壓力 | PN1.6、2.5、4.0、6.4 |
法蘭(lán)标準 | GB/T9113、 JB/T79 |
連接形式 | |
閥蓋形式(shì) | 标準型-17~+230℃、高溫型+230~+450℃、低(dī)溫型-60~-196℃、波紋管密封(feng)型-40~+350℃ |
壓蓋型式 | 螺栓(shuan)壓緊式 |
密封填料(liao) | V型聚四氟乙烯填(tian)料、含浸聚四氟乙(yǐ)烯石棉填料、石棉(mián)紡織填料、石墨填(tián)料 |
● 閥内件
閥芯形(xíng)式 | 雙導向雙座套(tao)筒型閥芯 |
流量特(tè)性 | 線性、等百分比(bǐ) |
● 執行機構
執行器(qì)型号 | 3810L系列、PSL系列 |
主(zhu)要技術參數 | 電源(yuan)電壓:220V/50Hz、輸入信号:4-20mA或(huò)1-5V·DC、輸出信号:4-20mA·DC |
防護等(děng)級:相當IP55、隔爆标志(zhì):ExdⅡBT4、手操功能:手柄 | |
環(huan)境溫度:-25~+70℃、環境濕度(du):≤95% |
電動三通調節閥(fá)流向指示圖

主要(yao)零件材料及結構(gòu)圖
1 | 閥體 | WCB | CF8 | CF8M | CF3M | |
2 | 閥座 | 304 | 304 | 316 | ||
墊片(pian) | PTFE/金屬石墨墊片 | |||||
4 | 閥(fa)籠 | 304 | 304 | 316 | 316L | |
5 | 導向套 | 304 | 316 | 316L | ||
6 | 閥蓋 | WCB | CF8 | CF8M | CF3M | |
閥(fá)杆 | 304 | 316 | 316L | |||
8 | 填料 | PTFE/柔性石墨(mo) | ||||
9 | 彈簧 | 65Mn | 304 | 316 | 316L | |
10 | 螺母 | 304 | 304 | 316 | ||
主要性(xing)能指标
指标(biao)值 | |||
基本誤差% | 配3810L±2.5; 配(pei)PSL±1.0 | ||
回差% | |||
死區% | 1.0 | ||
始(shi)終點偏差% | 始(shi)點±2.5 | 終點±2.5 | |
始點±2.5 | 終點(diǎn)±2.5 | ||
電關 | ±2.5 | ||
終點 | ±2.5 | ||
≤2.5 | |||
洩露(lu)量L/h | |||
可(kě)調範圍R | 30:1 | ||
額定流量(liang)系數Kv、允許壓差
公(gong)稱通徑 DN(mm) | 20 | 25 | 32 | 40 | 50 | 65 | 80 | 100 | 150 | 200 | 300 | |||
20 | 32 | 40 | 50 | 65 | 80 | 100 | 125 | 150 | 200 | 250 | 300 | |||
額定流量系數KV | 分(fen)流閥 | 6.3 | 8.5 | 13 | 21 | 34 | 53 | 85 | 135 | 210 | 340 | 535 | 800 | |
合流閥 | - | - | - | - | 85 | 135 | 210 | 340 | 800 | |||||
額定(dìng)行程(mm) | 16 | 25 | 40 | 60 | 100 | |||||||||
允許壓差(MPa) | 3.5 | 3.2 | 2.2 | 2.2 | 1.4 | 1.38 | 0.94 | 0.36 | 0.2 | 0.13 | ||||
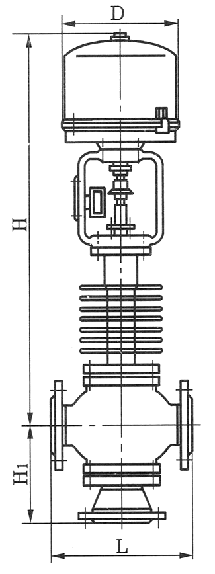
主(zhǔ)要外形及連接尺(chi)寸
公稱通徑 DN(mm) | 20 | 25 | 32 | 50 | 65 | 80 | 125 | 150 | 200 | 250 | ||||
L | PN16/25 | 185 | 200 | 220 | 275 | 350 | 410 | 450 | 550 | 670 | 770 | |||
PN40 | 185 | 190 | 230 | 255 | 285 | 310 | 355 | 425 | 460 | 560 | 690 | 795 | ||
PN64 | 190 | 220 | 240 | 265 | 295 | 320 | 370 | 400 | 475 | 570 | 752 | 819 | ||
140 | 140 | 150 | 200 | 222 | 230 | 270 | 280 | 306 | 474 | 584 | ||||
PN40 | 140 | 140 | 150 | 160 | 180 | 200 | 230 | 270 | 280 | 306 | 474 | 584 | ||
PN64 | 150 | 160 | 170 | 180 | 220 | 240 | 260 | 322 | 380 | 495 | ||||
H1 | 155 | 175 | 180 | 200 | 235 | 250 | 330 | 350 | 420 | 530 | 680 | |||
H2 | PSL | 465 | 465 | 465 | 560 | 560 | 560 | 560 | 560 | 788 | ||||
373 | 495 | 700 | 700 | 700 | 725 | 725 | 725 | |||||||
D | 177 | 177 | 177 | 177 | 177 | 182 | 182 | 182 | 182 | 218 | 218 | 218 | ||
R | 225 | 225 | 225 | 225 | 225 | 257 | 257 | 310 | 310 | 310 | 310 | |||



打印(yin)當前頁
查看及下(xia)載技術文檔
發郵(you)件給我們:



